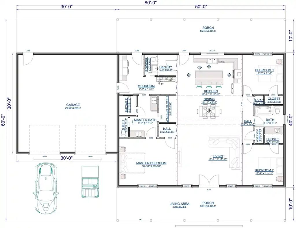
Home and Family, House Plans House Plans By HPJ Staff July 19, 2025 Listen Now 0:00 Find this Monster House Plan #127-101 and more online at www.monsterhouseplans.com. TAGS: barndominium, home, living space, Monster House Plan, three bedrooms Related Articles House Plan House Plans House Plans A fresh farmhouse design for a growing family