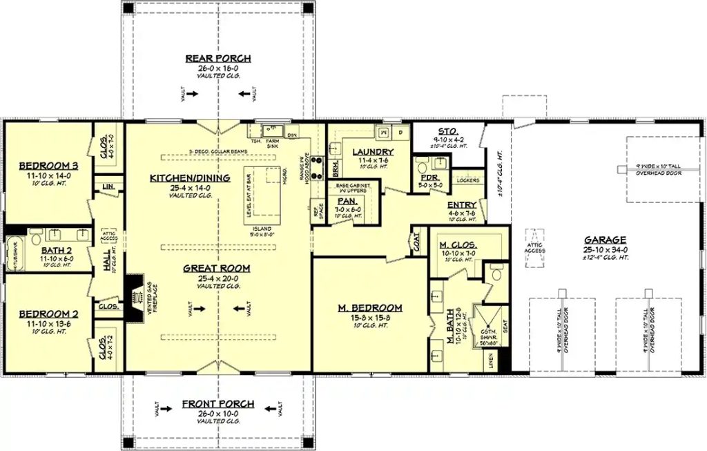
Home and Family, House Plans House Plans By HPJ Staff April 12, 2026 Listen Now 0:00 TAGS: barndominium, farmhouse, Modern, Monster House Plan, three bedroom, two and a half bath Related Articles House plan House plans House plans House Plan