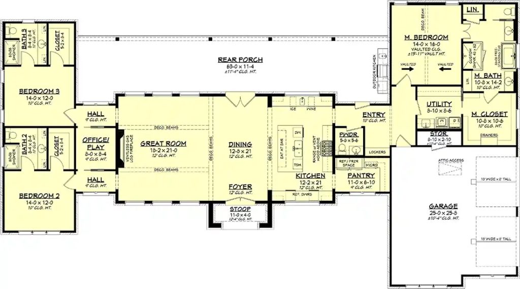
Home and Family, House Plans House Plans By HPJ Staff May 24, 2025 Listen Now 0:00 Find this Monster House Plan #50-539 and more online at www.monsterhouseplans.com. TAGS: modern house plan, Monster House Plan, three and a half baths, three bedroom Related Articles House Plans House Plans House Plan House Plans