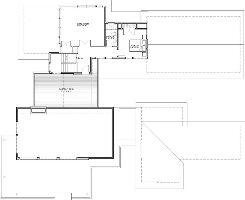
Home and Family, House Plans House Plans By HPJ Staff August 30, 2025 Listen Now 0:00 Find this Monster House Plan #98-137 and more online at www.monsterhouseplans.com. TAGS: #98-137, 3 car garage, four baths, four bedroom, Monster House Plans, two story Related Articles House plan House plan House Plan House Plans