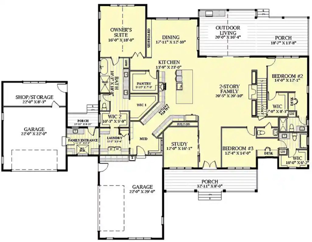
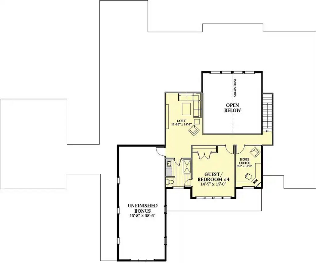
Home and Family, House Plans House Plans By HPJ Staff November 09, 2025 Listen Now 0:00 Find this Monster House Plan #90-195 and more online at www.monsterhouseplans.com. TAGS: four bath, four bedroom, Monster House Plans, outdoor living space, porches, shop/storage, spacious Related Articles House plan House Plans House Plan House Plan