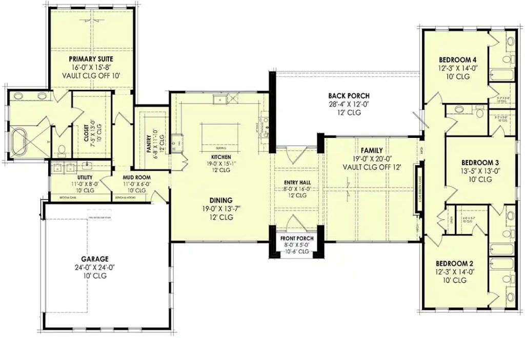
Home and Family, House Plans House Plans By Kylene Scott April 25, 2026 Listen Now 0:00 Find this Monster House Plan #131-149 and more online at www.monsterhouseplans.com. TAGS: 3081 square feet, 4 bedroom home, 4.5 bathroom house, home design plans, modern house plan, Monster House Plans 131-149, one-story house plan, residential floor plan, single-level living, two-car garage Related Articles House Plan House Plans House Plan A quaint colonial-style home for the larger family