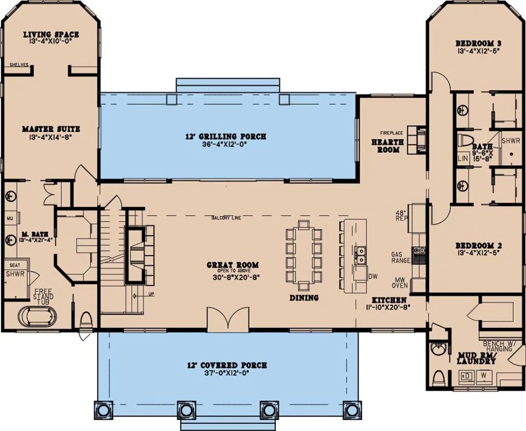
Home and Family, House Plans House Plans By HPJ Staff April 05, 2025 Listen Now 0:00 Find this Monster House Plan #12-1620 and more online at www.monsterhouseplans.com. TAGS: five bedroom, four bath, garage, Monster House Plans, porch, shingle house plan, two story Related Articles A home for multiple generations Indoor and outdoor living at its finest A large covered porch welcomes you to the Julia Greenridge 5 a triplex with plenty of room