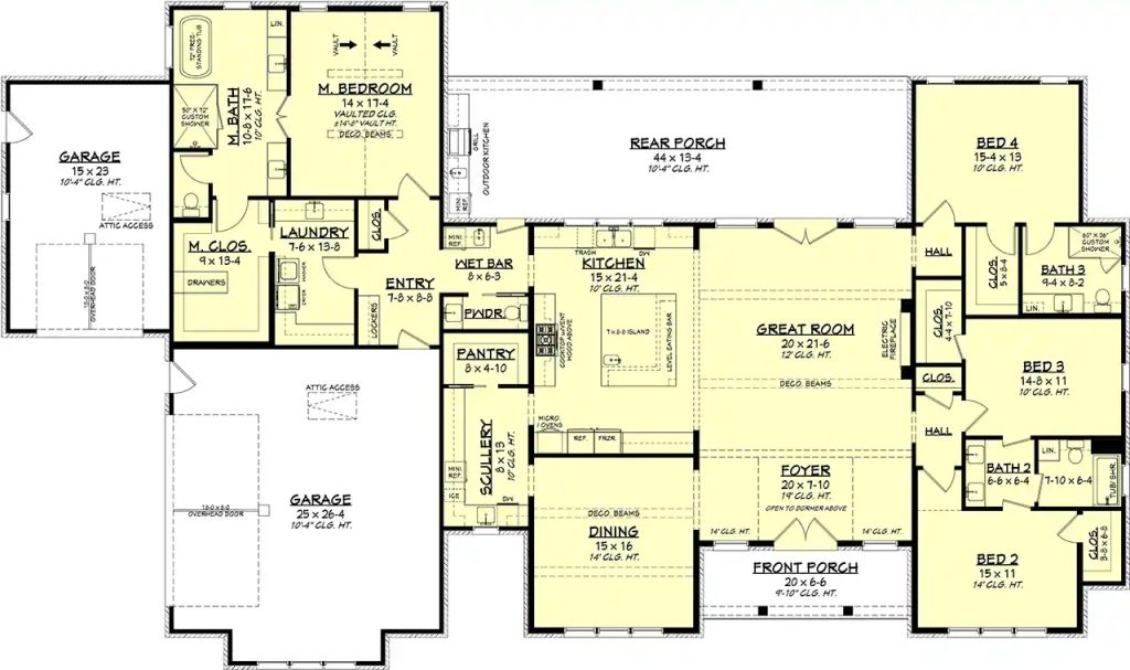
Home and Family, House Plans House Plans By HPJ Staff January 17, 2026 Listen Now 0:00 Find this Monster House Plan #50-622 and more online at www.monsterhouseplans.com. TAGS: 3.5 baths, Four bedrooms, Monster House Plan, one story Related Articles House Plans House Plans House Plan House Plans